12895 SW 132nd Street, Miami, FL 33186

Lakeside Office Park – Headquarters Building

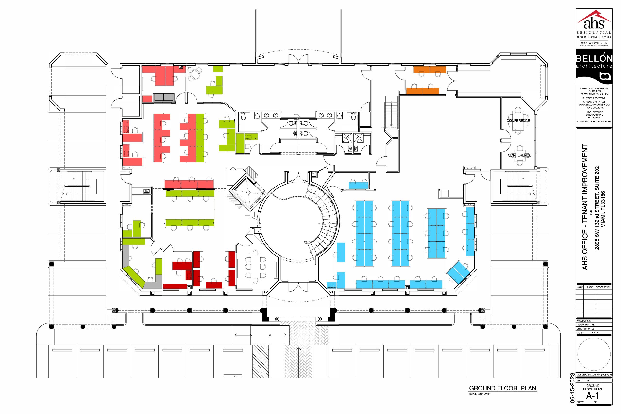
Prime opportunity to purchase a trophy lakefront headquarters building in the rapidly growing Kendall submarket. This attractive building, the former southeast US headquarters of the international construction/development company Resia, has been renovated and outfitted with high-end finishes, including a beautiful entrance/reception area, multiple executive offices, conference/meeting rooms, outfitted open areas (furniture possibly available), multiple ADA-compliant restrooms on each floor, ample break room with an oversized kitchen and outdoor, waterfront dining/seating area. Plug & play at its finest.

Gorgeous Custom Buildout

Entire Building Headqurters

LARGE breakroom with outdoor seating

Designated Parking Spaces

Prime kendall location

PROPERTY DOCUMENTS